Now welcoming new food concepts!

The Element Eatery team is excited to welcome creative, forward-thinking chefs who will play, grow, and be part of something big as they expand their own brand identities.

We’re always interested in getting to know great vendors who could delight our guests. If you’d like more information, we welcome you to get in touch.

Floorplan (1)

Frequently Asked Questions

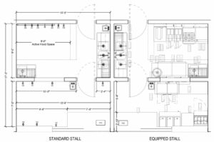
Element Eatery will provide the stall and kitchen equipment. The facility fee includes property tax, insurance and utilities.

The Vendor will be responsible for up-fitting their stall with cooking items, signage, and decoration. Additional startup costs include but are not limited to: permits, fees and costs associated with authorization with state and local permitting organizations.